Plan instalație electrică


Despre proiect

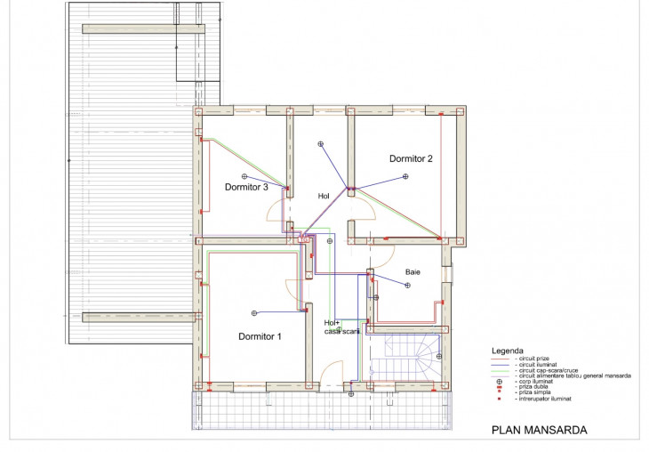
După realizarea instalație electrice s-a realizat un plan As-Build prin care beneficiarul poate observa exact cum s-a realizat instalația și exact pe unde trec circuitele o să apară modificări ulterioare.


Alte proiecte realizate de Electrician Vlad